谯城经开区管委会
当前位置: 网站首页 > 政府信息公开 > 谯城经开区管委会 > 意见征集
索引号: 1134160269107151XA/202508-00048 组配分类: 意见征集
发布机构: 谯城经开区管委会 主题分类: 国土资源、能源 / 公民
名称: 安徽古奇酒业有限公司古奇威士忌庄园项目规划建筑设计方案(调整)公示 文号:
发文日期: 2025-08-27 发布日期: 2025-08-27
索引号: 1134160269107151XA/202508-00048
组配分类: 意见征集
发布机构: 谯城经开区管委会
主题分类: 国土资源、能源 / 公民
名称: 安徽古奇酒业有限公司古奇威士忌庄园项目规划建筑设计方案(调整)公示
文号:
发文日期: 2025-08-27
发布日期: 2025-08-27
安徽古奇酒业有限公司古奇威士忌庄园项目规划建筑设计方案(调整)公示
发布时间:2025-08-27 18:14 信息来源:谯城经开区管委会 浏览次数: 字体:[ ]

安徽古奇酒业有限公司古奇威士忌庄园项目

规划建筑设计方案(调整)公示

 

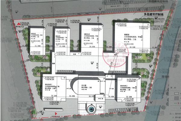
项目位置:谯城区古井镇G105国道东侧

建设单位:安徽古奇酒业有限公司

设计单位:中轻建设科技(安徽)有限公司

用地规模:24379.9㎡(36.57亩)

用地性质:工业用地

一、调整原因和内容:

(一)企业因威士忌生产工艺需求,酿造车间和调配车间之间需设计架空管道,故作此调整。

(二)调整前总建筑面积:17798.84㎡;调整后总建筑面积:17867.61㎡;调整前容积率:1.21;调整后容积率:1.21;调整前建筑密度:41.6%;调整后建筑密度:41.6%

二、网上公示意见或建议反馈途径:

(一)登录安徽亳州谯城经济开发区管理委员会网站查询;

(二)周边各单位及住户如对此规划方案有异议,请自公示日起7个工作日内以书面形式与我局联系。我局将在公示期满后综合分析有关单位和住户的意见,并按有关技术规范和规定给予办理相关规划手续。邮箱:qcjkqgwh@163.com咨询电话:0558-5196209;地址:亳州市谯城区张良路与银杏路交叉口东北侧安徽亳州谯城经济开发区管理委员会9026室。

 

         安徽亳州谯城经济开发区管理委员会规划建设局

                         2025827日               

 

调整前总平面图:

 

调整后总平面图:

 

调整前鸟瞰图

调整后鸟瞰图